

好和設計-室內設計公司,內湖區室內設計公司
店家文章分享
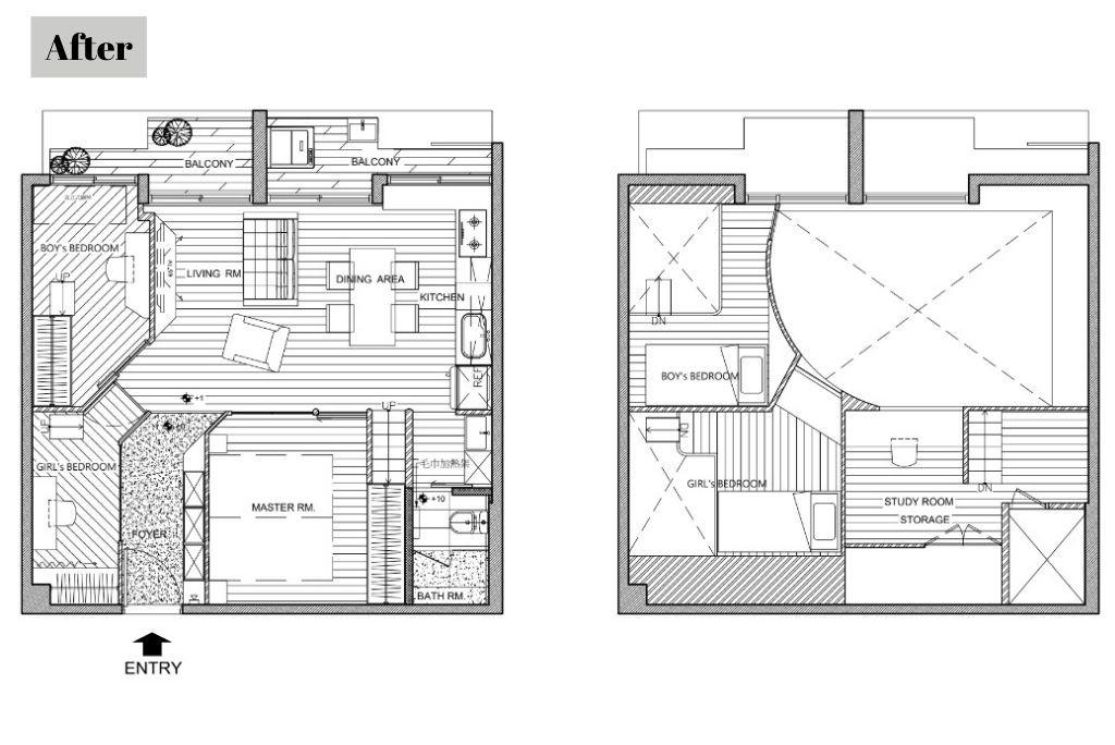
【窗景之家| The View】─ 四房二廳一衛浴
「改造動線引入自然光及空氣流通,一家四口擁有獨立又共享的活動空間!」

原屋況除了有動線不佳、收納不足的問題外,採光處被阻隔,通風也因格局破碎受影響,隨著小孩成長分房的需要,
設計師掌握挑高優勢,在15坪的空間規劃3+1房,並以「社區型的建築關係」為此次設計發想,
公領域的客廳廚區域,成為家人朋友交流互動的匯集處,
主臥、小孩房,都以休憩兼具讀書辦公兩用做規劃,讓整體居住品質有效提升。


■玄關
利用一坪的空間作為玄關,除了有系統櫃收納鞋子與外衣,搭配穿鞋椅與工具櫃,讓外出時舒適不匆忙。

■客餐廚
原本在正中間的電視牆改變方向並往前位移,使採光範圍擴大,順利引光入室,同時加裝全熱交換機,整體空間不再陰暗沉悶!


而打開後的空間,以沙發作為過渡,並加入親友相聚時,能共同用餐的大餐桌,也因為轉向後的格局規劃,
讓廚房的料理檯面成為原本的一倍,擁有400CM的料理舞台,加裝伊萊克斯洗碗機,實現女屋主的許願清單。


■主臥&男主工作區
以大片落地窗作隔間,搭配風琴簾,在空間通透性,與保有隱私之間達到平衡,
背牆以一抹霧森綠色作為點綴,呼應自然光竄流的氣息。
床尾整面系統櫃,也能有效收納男女主人的衣物。
原來就位於夾層的辦公區,以弧形線條溫潤造型,一邊維持在家辦公的獨立空間,一邊則作為儲藏用途。


■男孩&女孩房
皆以上下舖為概念規劃,色彩則以灰褐色與天空藍的大地色系劃分,
男孩房下舖安置必要的書桌、書櫃、衣櫃之外,更安置心愛的鋼琴,能擁有獨立練琴的空間,
兩處上舖的牆面除了是弧形線條外,加上大小不同的開窗,盡可能裝載自然光於其中。




■衛浴
以拉門將盥洗檯面與半套衛浴分開,徹底實施乾溼分離的清爽環境,
同時選用花磚與鐵道磚兩款,透過拉門隔開,在視覺上不會過於花俏,又保有趣味與豐富。

入住後,屋主分享最滿意的就是在15.5坪的空間裡,實現3+1房的格局,也達成孩子分房階段的目標,
還能一次邀請兩組朋友到家做客,是過去完全無法想像的狀態,很開心能住進煥然一新的日雜系清新宅居!

其它相關店家資訊